建筑工地或小我室第建筑茅厕时,经常需要修一个化粪池,下面介绍一下”如何利用CAD简单绘制“三级化粪池”?“

工具/原料
- CAD2007
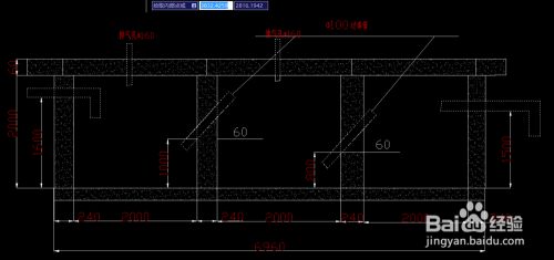
一、简单绘制俯视图
- 1
打开CAD,点击画图东西栏中的“矩形”或“直线”按钮,点击“ 正交 ”按钮,绘制三级池(沉淀池、过滤池、清水池)以及进出水口,并进行标注。

- 2
点击画图东西栏中的“布景”按钮,点击图案选择合适的材料或颜色。

- 3
点击鸿沟“拾取点”或“选择对象"确定鸿沟,点击确定即可设置图形材料或颜色。



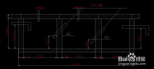
二、简单绘制剖面图
- 1
点击画图东西栏中的“矩形”或“直线”按钮,点击“ 正交 ”按钮,绘制三级池的剖面以及管道、排气孔,并进行标注。

- 2
设置三级池剖面材料及颜色:点击画图东西栏中的“布景”按钮,点击图案选择合适的材料或颜色。

- 3
点击鸿沟“拾取点”或“选择对象"确定鸿沟,点击确定即可设置三级池剖面材料或颜色。



- 4
设置管道剖面材料及颜色:点击画图东西栏中的“布景”按钮,点击图案选择合适的材料或颜色。

- 5
点击鸿沟“拾取点”或“选择对象"确定鸿沟,点击确定即可设置管道剖面材料或颜色。



注重事项
- 绘制简单图时,注重要表现出各个部门的长、宽、高、角度(即设置标注)及利用材料(即设置布景)。








